Workpack: Match Lines
The Match Lines feature is used to place custom detection boundaries for processing areas in AI-Setup mode. It is set in order to know where one plan is ended, and another is started when two joint plans are drawn with some overlapping space.
In Workpack, Match Lines are used as closing lines for the detection area. Rooms as Walls will be cut by this line.
- Here, we compare detection without and with Match Lines set:
.png?width=296&height=342&name=image%20(47).png)
-
For Rooms cut by Match Lines, the perimeter will be calculated not accounting the side created by a Match Line.
.png?width=550&height=645&name=image%20(48).png)
How To Use It
1. Add Match Lines to Takeoff Zone in Setup:-
Match Lines will be applied in a sheet during processing, so the first step is to add them and process the document.
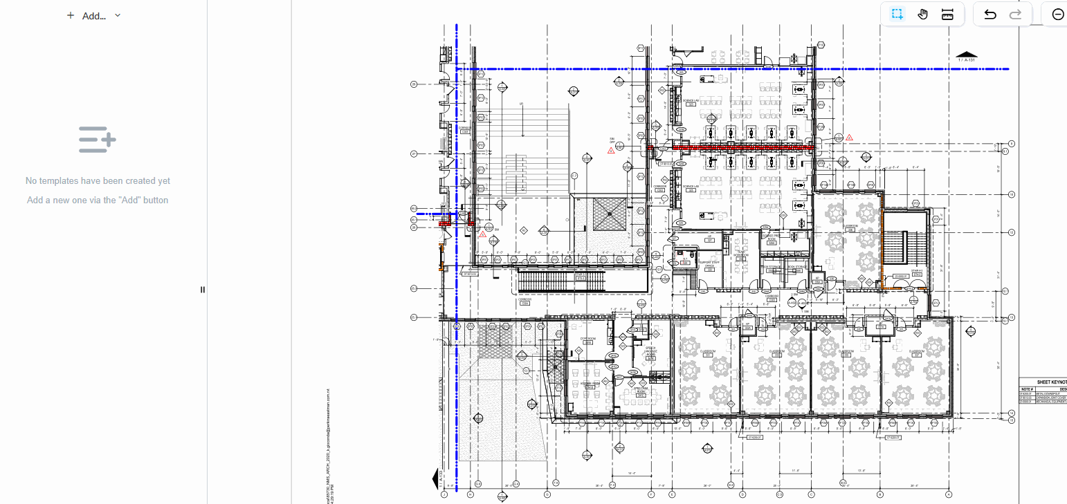
-
In the left panel menu, add one or several Match Lines inside a Takeoff Zone.
- Match Lines can only be added to existing Takeoff Zones in AI-Setup mode.
.gif?width=670&height=317&name=7%20(2).gif)
2. Process the document.
- Added Match Lines are processed automatically:
.gif?width=670&height=349&name=8%20(2).gif)
3. Review processing results:
-
After processing, Match Lines are added to sheets in Takeoff Mode.
- Match Lines can only be changed in AI-Setup mode after processing, and are not selectable in Takeoff Mode.

Video Demonstration: