Workpack: Electrical Plan Takeoff
Definition
An Electrical Plan is a type of technical drawing that describes the position of all the electrical apparatus. You can recognize an Electrical Plan by number of electrical wires, switches and other electrical items in the drawing.
How to Create an Electrical Plan
To begin the takeoff process, you need to set up a Takeoff Zone. Navigate to AI-Setup Mode and set up a Takeoff Zone either automatically or manually via the + Add… button.
Select the Takeoff Zone you just created and choose Electrical Plan in the dropdown in the right menu.
Add Custom Label Template
For label detection, create a template (or several templates). Click the + Add… button, choose Custom Label Template, and draw a box around any Label that is of interest to you on the Takeoff Zone.
NOTE: after you create a Template of any type, system will use it for Processing at any page of the document (not only for Processing at original page).

Add Text Label Template
In case the Label Template does not have borders, you need to use Text Label Template.
NOTE: Learn more about Text Label here: Text Label Schedule.
Add Symbol Template
For symbol detection (Symbol is the same as Label, but without text), create template (or several templates). Click the + Add… button, choose Symbol Template, and draw a box around any Symbol that is of interest to you on the Takeoff Zone. Note that Labels match the Table, Symbols do not match the Table.
NOTE: Learn more about adding new Templates here: Adding templates.
Add Counts
To add Counts, click the + Add… button, select Counts and click on objects on the Viewer you want to count.

You are now ready for processing.
How to Process an Electrical Plan
Click Process button in the top right corner. Here click on your Takeoff to open additional options and check all objects you need to process. For example:
- Symbols
- Custom Labels
- Walls and any other type of object you want to detect on the Takeoff
Click the Continue button and wait for the results (you will receive a notification by email).
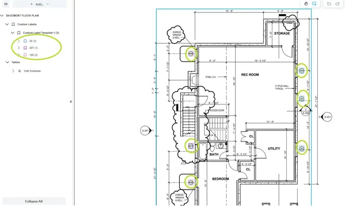
For example, here are the results for Custom Label detection (we created a Custom Label Template in the previous chapter).

How to Read Processing Results
After Processing is finished, you will see the document in the Takeoff Mode. Here are all the objects that you selected on the previous step. In addition, you can see all objects in the left menu.
You can add, delete or edit all objects in the Takeoff Mode (see a detailed guide here: Takeoff Mode).
Additional Option: Tags
After you have your objects in the Takeoff Mode, you can group objects of any type using tags. Use right-click on the object (or multi-select several objects by holding the CTRL key), click Tags and select the tag you need (you can also create a new tag here).

Additional Option: Tables
If there is a Table in your document, you can match data from a Table to Labels you created. To do this, process this Table (see details here How to work with Tables ).
For example, you have a Table with electrical codes and there are Labels with the same electrical codes in your Takeoff Zone. In this case, you create and process the following:
- Custom Label Template
- Table
As result, when you select a Custom Label in the Takeoff Zone or left panel, you will see the corresponding data about this Label from the Table.